Destacadas En Venta Nuevas
Paraíso para los Amantes de la Naturaleza: Inversión de Valor Excepcional en Aichi
Aichi, Ciudad Toyota
  • $28,571

Dirección

  • Dirección Araimaehigashi-33-8 Ōnumachō, Toyota, Aichi, Japón
  • Ciudad Ciudad Toyota
  • Estado/condado Aichi
  • Código postal 444-3242
  • Pais JAPON

Descripción


Estamos profundamente encantados de presentar una oportunidad inmobiliaria excepcional ubicada en Araimaehigashi-33-8 Ōnumachō, Toyota, Aichi 444-3242, Japón. Esta propiedad se ofrece a un precio sumamente atractivo de $28,571 (based on 4,000,000 JPY at 1 USD = 140) (Additional notary, processing, documentation, and tax expenses are estimated at approximately USD 10,000). Situada en un vecindario residencial profundamente tranquilo y elevado, esta casa proporciona un escape sereno de la bulliciosa vida de la ciudad, convirtiéndola en un refugio psicológico perfecto tanto para inversores internacionales exigentes como para familias que buscan una paz profunda.

La clásica estructura de madera de dos pisos cuenta con un diseño 5LDK sorprendentemente espacioso, asegurando un amplio espacio con cinco dormitorios separados junto con una cómoda sala de estar, comedor y área de cocina. Orientada directamente al sur, la residencia invita a una luz natural abundante y cálida durante todo el día, creando un ambiente interior estimulante y positivo. Una de sus características más cautivadoras es la magnífica e ininterrumpida vista desde el balcón, que permite a los residentes sumergirse por completo en el poder curativo del paisaje natural circundante. La casa está cuidadosamente equipada con comodidades prácticas, que incluyen aire acondicionado para el confort durante todo el año, generosos vestidores para una organización óptima, un baño bien ventilado con ventana y un moderno inodoro con bidé. Además, el estacionamiento gratuito en las instalaciones agrega una capa de conveniencia diaria.

Estratégicamente ubicada en la pintoresca y verde región de la ciudad de Toyota, la ubicación ofrece un equilibrio sofisticado entre la naturaleza inmersiva y la accesibilidad urbana esencial. Según Google Maps, la propiedad está convenientemente situada a 45 minutos en coche del vibrante centro de la ciudad de Toyota, conectándolo sin esfuerzo con las principales infraestructuras urbanas, centros comerciales y el corazón económico de la región. Para el enriquecimiento cultural y el ocio, el célebre desfiladero de Korankei, famoso a nivel nacional por su impresionante y vibrante follaje otoñal, está a solo 25 minutos en coche. Además, el profundamente histórico Matsudaira-go, el lugar de nacimiento ancestral del influyente clan Tokugawa, se puede llegar en aproximadamente 20 minutos en coche.

Hablando profesionalmente, esta propiedad registrada en el Akiya Bank representa un “lienzo en blanco” convincente para compradores visionarios. Sin carga de camino privado, tiene un potencial inmenso y sin explotar. Está idealmente posicionada para ser transformada en un lucrativo alquiler vacacional dirigido a turistas extranjeros que buscan la auténtica tranquilidad japonesa, un retiro dedicado al trabajo remoto para nómadas digitales, o una casa de vacaciones privada y restauradora. Aproveche esta oportunidad rara y meticulosamente analizada de invertir en la genuina serenidad japonesa a un valor absolutamente incomparable.

Detalles

ID de la propiedad
CBJ2500391
Dormitorios
5
Baño
1
Tamaño de la propiedad
45 m²
Superficie del terreno
150 m²
Garage
1
Año de construcción
1994/11
Updated on abril 22, 2026 at 5:57 pm

Planos de planta

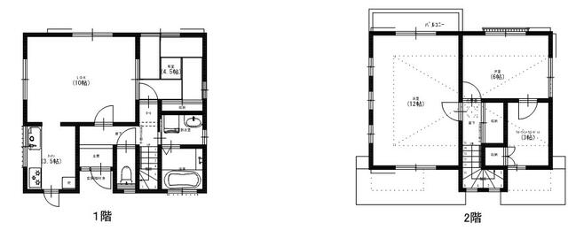
Distribución Residencial De Planta

Description:
Basado en el plano, el primer piso cuenta con un área de concepto abierto que integra sala, comedor y cocina (LDK) de aproximadamente 22 m² (235 ft²) en el lado oeste, junto con una tradicional sala de tatami de 7 m² (78 ft²) en la esquina noreste, además de las instalaciones esenciales como la entrada, el baño completo y el medio baño. El segundo piso consta de tres habitaciones de estilo occidental: un amplio dormitorio principal de 19 m² (209 ft²) en el lado oeste con acceso al balcón, un dormitorio de 10 m² (105 ft²) en el noreste y una habitación más pequeña de 5 m² (52 ft²) en el sureste, ofreciendo una distribución muy práctica para el descanso y el almacenamiento.

Dormitorios:
5
Baños:
1
Tamaño:
45 m² (484 ft²)

Detalles adicionales

  • Distribución: 5LDK (5 Dormitorios + Sala de Estar / Comedor / Cocina)
  • Estructura: Madera / 2 Plantas
  • Área construida: 45 m² (484 ft²)
  • Área del terreno: 150 m² (1619 ft²)
  • Estacionamiento: 1 coche
  • Suministros básicos: Electricidad, Gas propano, Agua pública, Fosa séptica
  • Estación mas cercana: 52 minutos en autobús desde la estación Toyota-shi (Línea Meitetsu Toyota) seguidos de una caminata de 9 minutos
  • Orientación: Orientación Sur
  • Etiquetas / destacados: Registrado en Akiya Bank, zona residencial tranquila, sin carga de camino privado, vistas excelentes

Información de contacto

Casas Baratas Japón
  • Casas Baratas Japón
  • +817084030320 WhatsApp
Ver listados

Consultar sobre esta propiedad

Propiedades similares

Compare listings

Compare
Casas Baratas Japón
  • Casas Baratas Japón