Destacadas En Venta
Invierta en Tranquilidad: Casa de 4LDK Cerca del Shinkansen
Saitama, Ciudad Honjo
  • $42,857

Dirección

  • Dirección 308-10 Kodamachō Tabata, Honjo, Saitama, Japón
  • Ciudad Ciudad Honjo
  • Estado/condado Saitama
  • Código postal 367-0222
  • Pais JAPON

Descripción


Presentamos una oportunidad de inversión y estilo de vida excepcionalmente rara en la tranquila y encantadora ciudad de Honjo, Saitama. Con un precio extraordinariamente bajo de $42,857 (basado en “el precio de la casa en 6´000,000JPY” a 1 USD = 140; Los gastos adicionales de notaría, trámites, documentación e impuestos se estiman en aproximadamente USD 10,000). Esta casa de propiedad absoluta ofrece un valor increíble y un potencial de crecimiento significativo para el inversor astuto o una familia que busca un hogar espacioso.

Construida en 1992, esta casa de dos pisos está situada en un deseable lote de esquina orientado al sureste, asegurando una abundante luz natural durante todo el día. La propiedad cuenta con una generosa distribución 4LDK de 95 m² sobre una parcela de 129 m², proporcionando un amplio espacio para una vida cómoda. Entre sus características más destacadas se incluyen aparcamiento para dos vehículos, una rareza muy valorada; dos aseos para mayor comodidad familiar; espacio de almacenamiento en todas las habitaciones, incluido un práctico desván; y un jardín privado. La propiedad está ubicada en una zona residencial tranquila, ideal para aquellos que buscan un ambiente de vida pacífico.

Ubicación Estratégica: Un Puente entre el Patrimonio Mundial y el Centro de Tokio

Para inversores y residentes por igual, la ubicación es una ventaja destacada. La propiedad ofrece una mezcla única de vida suburbana serena y un acceso inigualable a la cultura, la naturaleza y los centros urbanos. A solo 15 minutos en coche se encuentra la estación de Shinkansen (tren bala) de Honjo-Waseda, que le conecta con el centro de Tokio en aproximadamente 50 minutos, haciendo que los desplazamientos o las visitas a la ciudad sean rápidos y fáciles.

Además, esta casa es una base perfecta para explorar algunos de los tesoros más preciados de Japón. El Molino de Seda de Tomioka, un sitio declarado Patrimonio de la Humanidad por la UNESCO que marcó el comienzo de la era industrial moderna de Japón, se encuentra a unos 35-40 minutos en coche. Para los entusiastas de las actividades al aire libre, la pintoresca zona de Nagatoro, famosa por sus paseos en barco por el río y sus impresionantes formaciones rocosas, está a solo 40 minutos en coche. La región de Chichibu, conocida por sus magníficos santuarios y sus impresionantes paisajes de montaña, también es fácilmente accesible.

Para la vida diaria y las compras, el popular hipermercado Costco en Maebashi está a solo 30-35 minutos en coche, un atractivo significativo para las familias expatriadas e internacionales. Esta combinación de tranquilidad, comodidad y acceso a atracciones de clase mundial hace que la propiedad sea muy atractiva en el mercado de alquiler.

Esta propiedad representa una inversión sólida con un enorme potencial de revalorización. Para un inversor, es una oportunidad de adquirir un activo tangible a una fracción del coste de las propiedades del centro de la ciudad. Para una familia, es la oportunidad de poseer una casa espaciosa en una comunidad segura y tranquila, con toda la riqueza cultural y natural de Japón a la vuelta de la esquina, sin sacrificar la conexión con la vibrante metrópolis de Tokio.

Detalles

ID de la propiedad
CBJ250099
Dormitorios
4
Baños
2
Tamaño de la propiedad
95 m²
Superficie del terreno
129 m²
Garages
2
Año de construcción
1992/11
Updated on enero 5, 2026 at 4:43 pm

Planos de planta

Distribución Residencial De Planta

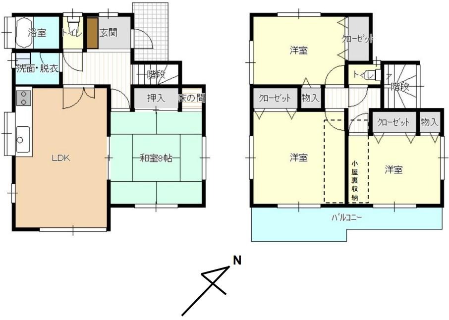
Description:
Esta casa de dos plantas presenta un diseño familiar y práctico. La planta baja está centrada en la vida diaria, con un espacioso salón-comedor-cocina (LDK) de concepto abierto. Junto a este, se encuentra una versátil habitación de estilo japonés con suelo de tatami de aproximadamente 13 m² (140 ft²), que puede servir como dormitorio adicional o sala de estar. Esta planta también alberga la entrada principal, el baño completo y un aseo independiente. La segunda planta está dedicada al descanso, con tres dormitorios de estilo occidental, cada uno equipado con su propio armario. Dos de las habitaciones comparten el acceso a un balcón, ofreciendo un espacio privado al aire libre. Para mayor comodidad, esta planta cuenta con un segundo aseo y un práctico espacio de almacenamiento adicional en el desván.

Dormitorios:
4
Baños:
1
Tamaño:
95 m² (1020 ft²)

Detalles adicionales

  • Distribución: 4LDK (4Dormitorios + Sala de Estar/Comedor/Cocina)
  • Estructura: Madera, 2 plantas
  • Área construida: 95 m² (1020 ft²)
  • Área del terreno: 129 m² (1389 ft²)
  • Estacionamiento: 2 coches
  • Suministros básicos: Gas LPG, Agua pública, Fosa séptica individual
  • Estación mas cercana: Estación Kodama: aprox. 10 min en bicicleta / 7 min en coche. Estación Tansho: aprox. 10 min en coche. Estación Honjo-Waseda (Shinkansen): aprox. 15 min en coche.
  • Orientación: Orientación Suroeste
  • Etiquetas / destacados: Precio muy asequible, Lote de esquina, Zona residencial tranquila, Propiedad absoluta.

Información de contacto

Casas Baratas Japón
  • Casas Baratas Japón
  • +817084030320 WhatsApp
Ver listados

Consultar sobre esta propiedad

Propiedades similares

Compare listings

Compare
Casas Baratas Japón
  • Casas Baratas Japón