Destacadas En Venta
Patrimonio y Horizonte: Una Oportunidad Única en Nagoya
Aichi, Ciudad Nagoya
  • $62,857

Dirección

  • Dirección Nishiōdakabata-29 Ōdakachō, Midori Ward, Nagoya, Aichi, Japón
  • Ciudad Ciudad Nagoya
  • Estado/condado Aichi
  • Código postal 459-8001
  • Pais JAPON

Descripción


Esta oportunidad única de inversión se ofrece al atractivo precio de USD 62,857 (basado en “8,800,000 JPY” a 1 USD = 140) (Additional notary, processing, documentation, and tax expenses are estimated at approximately USD 10,000). Situada en Nishiōdakabata-29 Ōdakachō, Midori Ward, Nagoya, Aichi 459-8001, Japón, esta residencia independiente representa una entrada sofisticada al mercado inmobiliario de Nagoya. Desde una perspectiva psicológica, poseer una casa en propiedad absoluta en una “Zona Residencial de Baja Altura” proporciona una sensación duradera de seguridad y un estilo de vida tranquilo del que suelen carecer los apartamentos modernos. Esta propiedad está diseñada para el confort, con todas las habitaciones principales superando los 6 tatamis de tamaño, asegurando una experiencia de amplitud poco común en las viviendas urbanas.

La ubicación es una obra maestra estratégica tanto para el estilo de vida como para la inversión. Un simple trayecto de 12 minutos a pie le lleva a la estación JR Odaka, que ofrece una conexión directa y rápida con el corazón económico de la estación de Nagoya en aproximadamente 20 minutos. Para los viajeros internacionales e inversores globales, la conveniencia es inigualable; el Aeropuerto Internacional Chubu Centrair (NGO) está a solo 30 minutos en coche a través de la línea Centrair. Lugares de interés cultural e histórico rodean la zona, con el antiguo Santuario Atsuta Jingu accesible en 15 minutos y el icónico Castillo de Nagoya en 25 minutos.

Además, los residentes pueden encontrar paz psicológica en la naturaleza en el cercano Parque Verde de Odaka (Odaka Ryokuchi), un enorme centro recreativo con parques de dinosaurios y karts, a solo 5 minutos. Para compras y entretenimiento, el Acuario del Puerto de Nagoya y Legoland Japón son accesibles en 25 minutos en coche. Este activo equilibra perfectamente la tranquilidad de un enclave residencial con la accesibilidad de alta velocidad necesaria para los negocios modernos y los viajes internacionales, lo que lo convierte en un candidato ideal para ingresos por alquiler a largo plazo o una casa de vacaciones boutique.

Detalles

ID de la propiedad
CBJ2500228
Dormitorios
3
Baños
2
Tamaño de la propiedad
80 m²
Superficie del terreno
89 m²
Año de construcción
1981/9
Updated on enero 23, 2026 at 2:04 pm

Planos de planta

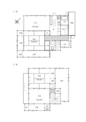
Distribución Residencial De Planta

Description:
Esta residencia tradicional de dos plantas ofrece una distribución funcional y espaciosa, ideal para familias o invitados. La primera planta cuenta con un salón-comedor de 12 m² (129 ft²) conectado a la cocina, junto a una habitación japonesa de 10 m² (105 ft²) rodeada por una amplia veranda de madera (Hiro-en). Este nivel también incluye un baño, zona de lavado, un aseo y un gran almacén exterior adjunto. La segunda planta dispone de un dormitorio principal japonés de 13 m² (140 ft²), una habitación de estilo occidental de 10 m² (105 ft²) y un segundo aseo. Destaca en la planta superior un gran cuarto de servicio dedicado al almacenamiento (Nando) y una veranda soleada que recorre las estancias.

Dormitorios:
3
Baños:
1
Tamaño:
80 m² (861 ft²)

Detalles adicionales

  • Distribución: 3LDK(3Dormitorios + Sala de Estar/Comedor/Cocina)
  • Estructura: Madera / 2 Plantas
  • Área construida: 80 m² (861 ft²)
  • Área del terreno: 89 m² (958 ft²)
  • Estacionamiento:
  • Suministros básicos: Gas Ciudad, Agua Pública, Alcantarillado Público, Electricidad
  • Estación mas cercana: Línea Principal JR Tokaido: Estación Odaka (12 minutos a pie)
  • Orientación: Orientación Sureste
  • Etiquetas / destacados: Activo en la ciudad de Nagoya, A pie de estación JR, Cerca de parque verde, Potencial de alto rendimiento

Información de contacto

Casas Baratas Japón
  • Casas Baratas Japón
  • +817084030320 WhatsApp
Ver listados

Consultar sobre esta propiedad

Propiedades similares

Compare listings

Compare
Casas Baratas Japón
  • Casas Baratas Japón